
Most Counties
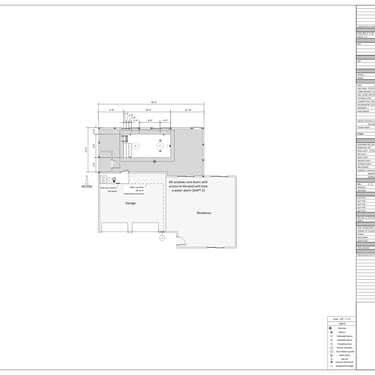
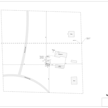
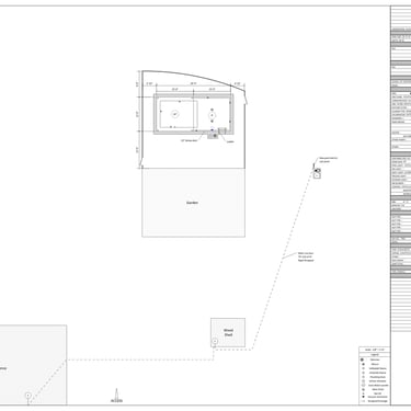
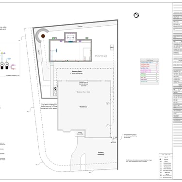
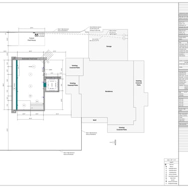
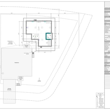
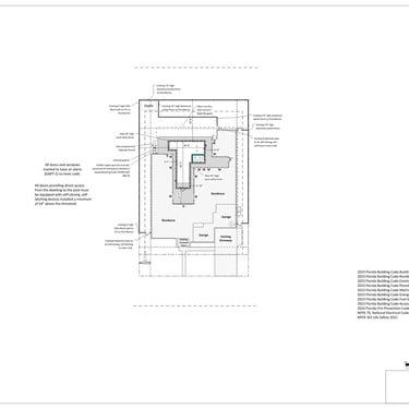
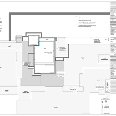
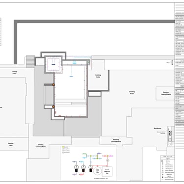
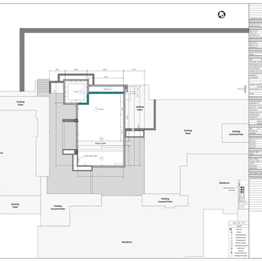
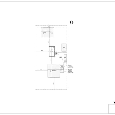
Many of the counties in Arizona have the standard pages to meet code, where as Maricopa County has their own standards. In order to meet Maricopa County, we need to add in a few more pieces. Including the maps and other items on the site plan, plus the added notations on the other pages.
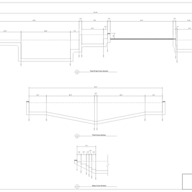
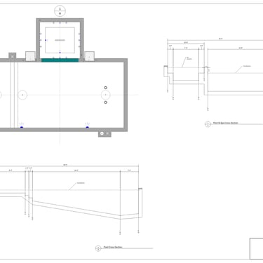
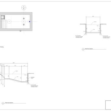
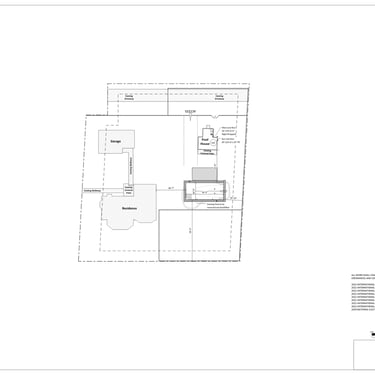
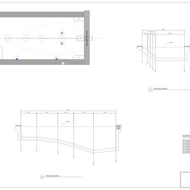
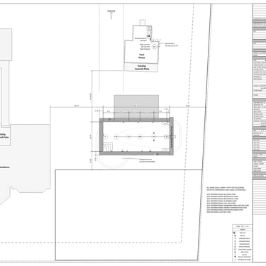
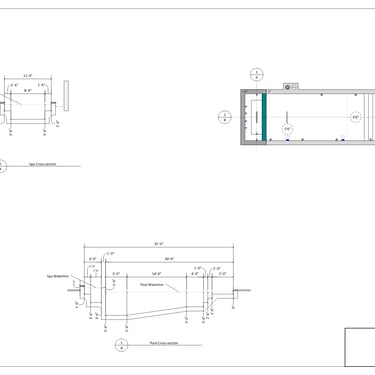
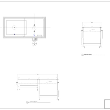
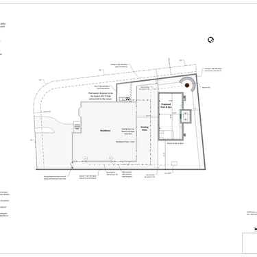
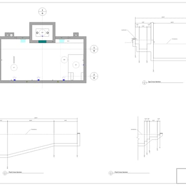
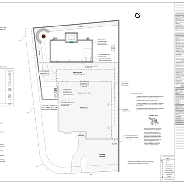
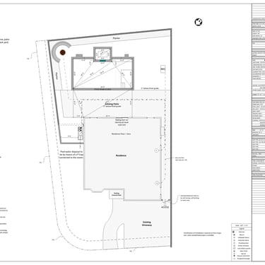
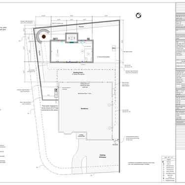
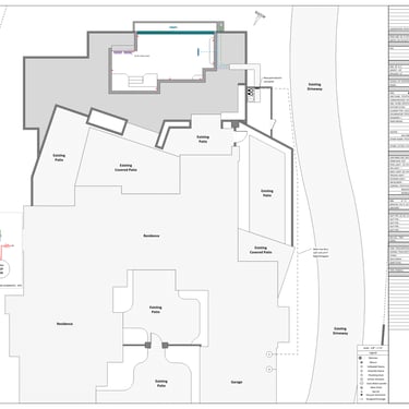
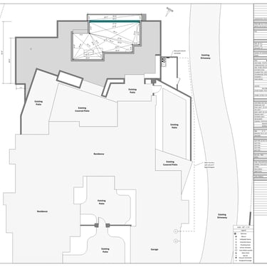
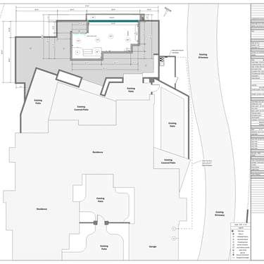
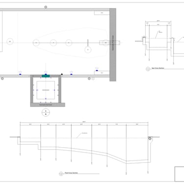
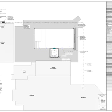
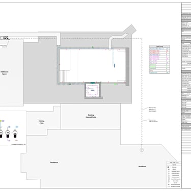
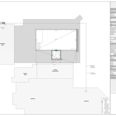
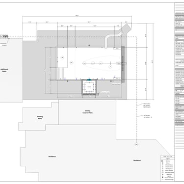
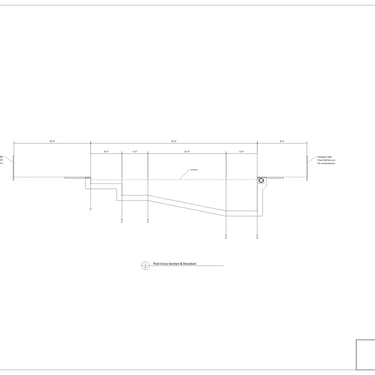
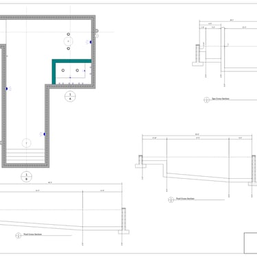
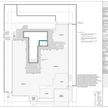
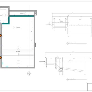
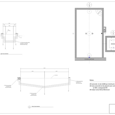
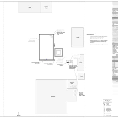
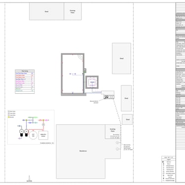
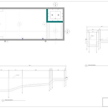
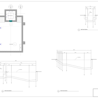
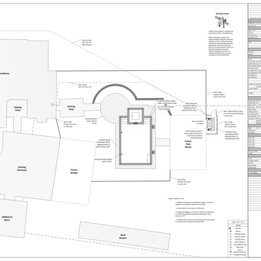
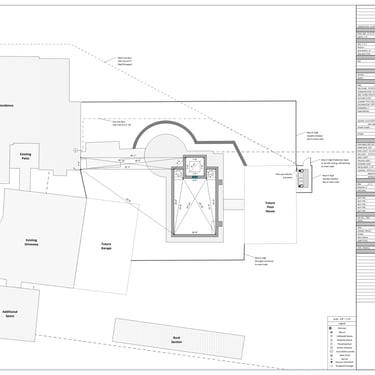
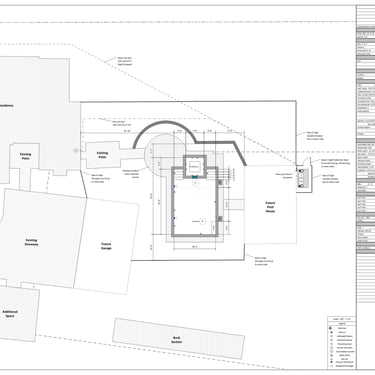
Most counties have a basic set-up with the mostly basic needs. The site plan, main plan, layout, plumbing, bonding and cross-section. These are the standards that make up the majority of the locations within the United States.
Stamford County
As with most counties throughout the country, we meet the standards for them with our basic plans. Occasionally, we may need to add additional notes to each page.
Multnomah County
As with most counties through out the country, we meet the standards for Multnomah County with our basic plans. Occasionally, we need to add notes to each page, but there's no problem depending on what is needed.
Las Vegas
The Las Vegas plans are on the smallest pages but they still have a reasonable amount of information on them. Depending on what county you live in, the plans may need additional information on them.





























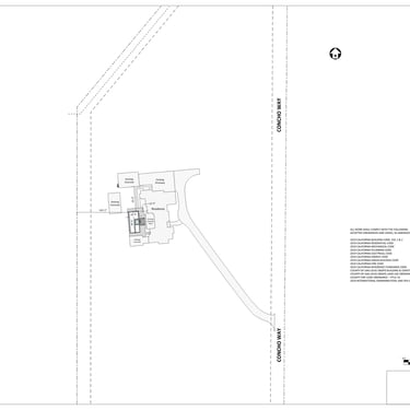
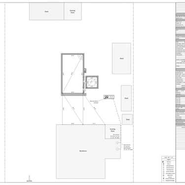
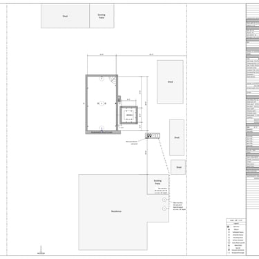
Arizona
Maricopa County
Connecticut
Oregon
Nevada
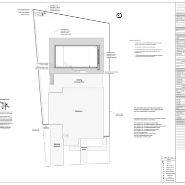
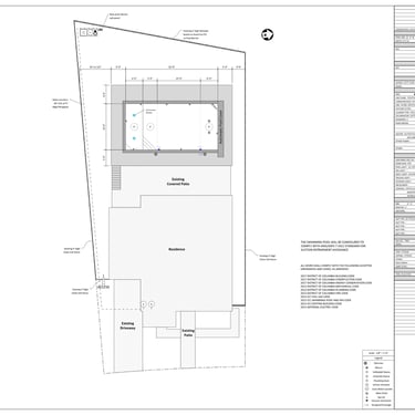
California


















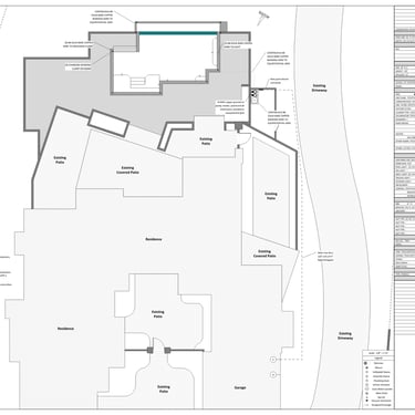
Strict Counties
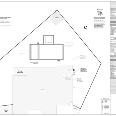
There are certain counties in California that require the most information we can put on a set of plans. Like Los Angeles, San Francisco, San Diego, Napa and others, they require everything on the each page.






Pima & Pinal County
Many of the counties in Arizona have the standard pages to meet code, certain counties require a little more on the plans. Pima and Pinal county are just examples of what is needed for some of the other counties to meet requirements.
United States
We offer special pricing to contractors! This pricing varies on which states and counyies of your customers and the requirements of those localities. Contact us today to get more information on special contractor pricing.
The requirements for plans can vary greatly from locality to locality. Below is a cross-section of different plans that meet different localities' standards. Obviously we can't put a set of plans for every location, but we can meet the standards.
We will be posting additional states as time goes on.
Contact Us for special Contractor Pricing!
Colorado







Most Counties
Most counties have a basic set-up with the mostly basic needs. The site plan, main plan, layout, plumbing, bonding and cross-section.
District of Columbia







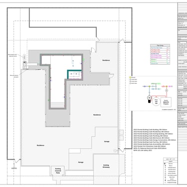
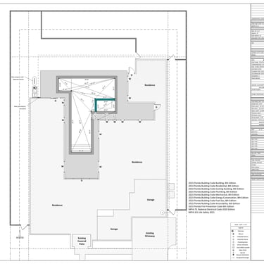
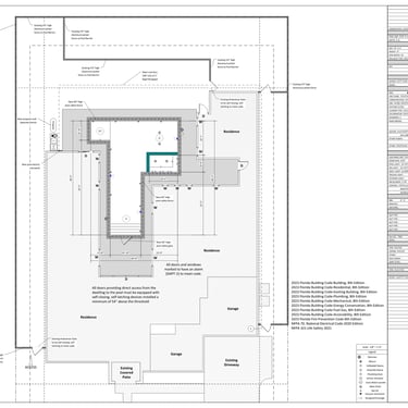
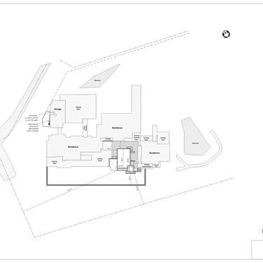
Florida
As with most counties throughout the country, we meet the standards for them with our basic plans. Occasionally, we may need to add additional notes to each page.








Idaho
As with most counties throughout the country, we meet the standards for them with our basic plans. Occasionally, we may need to add additional notes to each page.






Missouri
As with most counties throughout the country, we meet the standards for them with our basic plans. Occasionally, we may need to add additional notes to each page.





New Mexico
As with most counties throughout the country, we meet the standards for them with our basic plans. Occasionally, we may need to add additional notes to each page.






New York
As with most counties throughout the country, we meet the standards for them with our basic plans. Occasionally, we may need to add additional notes to each page.






Pennsylvania
As with most counties throughout the country, we meet the standards for them with our basic plans. Occasionally, we may need to add additional notes to each page.






Texas
As with most counties throughout the country, we meet the standards for them with our basic plans. Occasionally, we may need to add additional notes to each page.




Utah
As with most counties throughout the country, we meet the standards for them with our basic plans. Occasionally, we may need to add additional notes to each page.






